Pieni punainen kirja,Pispalan  kulttuuriympäristöohjelma

Piirros © Hanna- Tuulikki Andrews

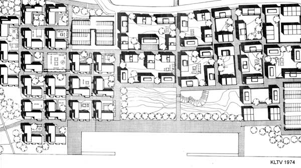
Pispalan kaavoitus - Pohjolan Rivieraksi

Arkkitehdit Risto Kauria ja Risto Turtola sekä arkkitehtiylioppilaat Matti Lummaa ja Timo Vormala (Arkkitehtitoimisto KTLV) ymmärsivät palkintolautakunnan käsityksen mukaan parhaiten kaupungin asettaman tehtävän.

Voittaneen työn ansioita palkintolautakunta arvioi seuraavasti:

“Eräänlaisena esikuvana on ollut etelä-eurooppalainen tiiviisti rakennettu pikkukaupunki, jossa yksityisen rakennuksen arkkitehtuuri kaupunkikuvan muodostajana on vähämerkityksinen” (Suomen Kunnallislehti1969/ 3, 9). “Pispalan perinteinen miljöö on alueen sosiaalisen ja fyysisen rakenteen yhteisvaikutusta. Tätä ei olosuhteiden muuttuessa [palkintolautakunnan] mielestä ole oikein pyrkiä keinotekoisesti säilyttämään.” “Fyysisen miljöön ominaisuudet on kuitenkin mahdollista säilyttää täysin nykyaikaisenkin rakentamistavan puitteissa. Näitä ominaisuuksia ovat rakentamisen tiiveys, rakennusten moninaiset ja voimakkaat muodot, erikoiset rinteeseen sovitetut talotyypit sekä suljettujen katutilojen ja pitkien maisemanäkymien vaihtelut” (Suomen Kunnallislehti1969/ 3, 8).

Perusselvitykset

Asemakaavaluonnoksen laatimista koskeva sopimus allekirjoitettiin 26.9.1969 ja siinä edellytettiin kaavaluonnoksen valmistumista 10 kuukauden kuluttua tarvittavien perusselvitysten luovuttamisesta kaavoittajien käyttöön. Asemakaavan luonnos valmistui 8.12.1970.

Perusselvitysten esittely jakautui suunnittelualueen ja sen historian, luontosuhteitten, aluerakenteen ja kaavatilanteen kuvaukseen suunnitteluraportin ensimmäisillä viidellä sivulla. Ainoa varsinainen selvitystyö joka raportissa mainitaan, on vuonna 1965 Tampereen yhteiskunnallisen korkeakoulun suorittama haastattelututkimus ja Taina Vattulaisen sen pohjalta laatima opinnäytetyö “jonka perusteella ovat suunnittelijat saaneet tietoja alueen asunto- ja väestöoloista sekä viihtyvyystekijöistä” (KTLV 1970, 6 ).

Kaavoittajat totesivat raportin lopussa itsekin, että suunnitelmaa edelleen kehitettäessä tulisi selvittää ainakin alueen maanomistussuhteet, liikenne- ja pysäköintijärjestelyt, teknillinen huolto, saneerauksen aiheuttamat seurausvaikutukset asukkaille, poikkeusluparakentamisen ohjaus ja valvonta sekä kaavamuoto ja sen vahvistamismenettely. (KTLV 1970, 22 ).

Kaavaluonnoksen ohjeellinen asukaslukutavoite oli 10 000 asukasta ja kerrosalatarpeen laskentaperusteena käytettiin 27m2ka/as. Asuinkorttelimaata kaavassa osoitettiin 48,7ha ja keskimääräisen tonttitehokkuuden ollessa et=0,7. “Tällä tehokkuudella rakennettaessa saadaan asuntokerrosalan kokonaismääräksi 351 880m2, jolloin teoreettiseksi asukasmääräksi tulee 12 460 asukasta” (KTLV 1970, 9).

Tämä jakautui kaupunginosien välille seuraavasti; Tahmela 92000m2 asuntokerrosalaa/3400 asukasta, Ylä-Pispala 123860/4540, Ala-Pispala 78100/2340 ja Hyhky 57920/12420, siis yhteensä 35 1880m2/12420 as. (KTLV 1970,11).

Rakennustarkastajan ohje

Asemakaavan ja sen suunnitteluratkaisujen toteutumisen tueksi kaavoittaja katsoi välttämättömäksi laatia kaavan fyysistä toteutumista ohjaava, rakentamistapaa koskeva säännöstö.

"Tällä säännöstöllä pyritään uuden rakentamisen sopeuttamiseen olemassa olevaan rakennettuun ympäristöön, sekä toisaalta suurempien yhtenäisten uudisrakentamisalueiden ympäristön muodostumiseen Pispalalle ominaista pieni- ja vapaamuotoisuutta vastaavaksi” (KTLV 1970,12).

Tämä niin sanottu rakennustarkastajan ohje määritteli rakentamisen korkeudet kerroslukuna, muttei antanut tarkempaa ohjetta kerros tai seinäjulkisivujen korkeudesta.

Yhtenäisen julkisivun maksimipituudeksi määriteltiin 24 m. “Pituuden rajoittamisella ohjataan uudisrakentaminen pienimuotoiseksi, jolloin vältetään nykyiseen ympäristöön soveltumattomien elementtien syntyminen. Annettu mitta soveltuu normaaliin yhdenportaanlamellitaloon” (KTLV 1970,12). Rakennusrungon pituutena 24 metriä oli Pispalassa kaavaa laadittaessa harvinainen, vaikkakin tätä kokoluokkaa olevia, ennen nykyisen kaavan voimaantuloa rakennettuja vuokrataloja harjulta on edelleen löydettävissä. Niiden säilymisen on taannut kaavan sallimaa suurempi käytetty rakennusoikeus.

Modernismin muotokielen ja rakennusteknisten ratkaisujen käyttö tuli esiin myös kattokulmaa koskevassa määräyksessä.

“Määrätynasteisen yhtenäisyyden saavuttamiseksi uudisrakentamisen muodoissa on päädytty määräykseen tasakattoperiaatteesta. Ratkaisuun on vaikuttanut lähinnä teknistaloudelliset seikat, sekä tasakaton antamat mahdollisuudet alueella muuten vaikeasti rakennettavan tonttikohtaisenvapaa- alanlisäämiseen” (KTLV 1970,12 ). “Rakentamistapaa koskevan säännöstön on katsottu olevan välttämätön ja samalla myös riittävä tae suhteellisen väljän kaavamuodon puitteissa tapahtuvasta asuinympäristön muodostumisen laadusta” (KTLV 1970,13 ).

Pohjolan Riviera-teeman omaksumisesta kaavoituksen periaatteeksi kuvastaa suunnitteluraportin kohta jossa käsitellään liikerakentamista. “Jos Pispala säilyttää erikoispiirteensä ja mielenkiintoisuutensa tulevaisuudessakin olisi tällaisten palvelujen sijoittaminen alueelle hyvinkin soveliasta.(vrt.pikku-hotellit, erikoisravintolat, taiteilija- ja käsityöläiskorttelitjne.)” (KTLV 1970,14).

Julkisista palveluista todettiin, että “uudisrakentamisen myötä tulee erityisesti lasten ja nuorten tilojen tarve tulee kasvamaan.” (KTLV 1970,14). Olemassa olevista palveluista mainittiin muun muassa lastentalo, kansakoulu ja kirjasto.

Maisema- ja ympäristönsuojelusta todettiin seuraavaa:

“Maisemansuojelun kohteena voidaan pitää Pispalan maisemallisia erityispiirteitä kokonaisuudessaan. Tämä merkitsee mm. harjun silhuetin säilyttämistä sekä rakentamisen sopeuttamista moninaisiin maastonmuotoihin. Maisemasuojeluun katsotaan tässä kuuluvaksi myös maiseman rakentaminen ja hoito sekä kortteli että vapaa-alueilla siten, ettei käyttökelvottomia ’jättömaita’ pääse tarpeettomasti syntymään” (KTLV 1970,19).

Tamperelaisen tiivistysrakentamisen perusteesinä tämä avointen, julkisten tilojen täyttötarve on toteutunut myös Pispalassa.

Kulttuurihistoriallinen suojelu alkoi asemakaavaa laadittaessa tulla Suomessa osaksi yhdyskuntasuunnittelun sanavalikoimaa.

Pispalan asemakaavan laatimisella kuitenkin oli puhtaasti saneeraava tavoite.

“Kulttuurihistoriallisesti merkittäviä kohteita ei alueella ole osoitettu. Eräänlaisena museoalueena on esitetty säilytettäväksi ja entisöitäväksi yksi rakennusryhmä Valtakunnantien varrella sijaitsevalla tontilla” (KTLV 1970,20).

Suunnitteluraportin loppusanoina todetaan, “Pispalan uudelleenrakentamista ohjaavankaava-asiakirjan tulee olla muodoltaan sellainen, että se parhaalla mahdollisella tavalla tukee todennäköistä toteuttamistapaa, toteuttamisen ajoitusta ja taloudellisuutta. Sitä laadittaessa on tarkoin punnittava ne erilaiset kaavamuoto- ja vahvistusmenettelytavat, jotka varsinkin ensivaiheen rakentamisvalvonnan avulla voivat muodostaa Pispalan saneeraussuunnitelmasta ja Pispalasta merkittävän esimerkin yleensä tulevan kaavoitustyön kannalta ja kaupunkialueita uudelleen kaavoitettaessa” (KTLV 1970,23).

Asemakaavaehdotus

Kaupunginvaltuusto hyväksyi asemakaavaluonnoksen 1.9.1971. Asemakaavaehdotusta käsiteltiin asemakaavalautakunnassa neljä kertaa vuoden 1974 lopulla ja se asetettiin kaupunginhallituksen hyväksynnän jälkeen nähtäville ajaksi 2.-16.7.1975.

Kaavaehdotus ei kuitenkaan ollut juuri muuttunut kaavaluonnoksesta. Se ei ottanut millään tavalla huomioon olemassa olevia kiinteistörajoja tai rakennuksia. Olemassa oleva rakennuskanta oli korvattu kokonaisuudessaan tasakattoisilla terassitaloilla. Keskitettyjä, 1-4 kerroksisia pysäköintilaitoksia olisi rakennettu 26 kappaletta. Pyhäjärven ranta olisi betonoitu satojen venepaikkojen veneilykeskukseksi.

Asemakaavaehdotusta vastaan jätettiin 93 muistutuskirjelmää ja erillinen 2.300 asukkaan allekirjoittama Pispala-adressi.

Valtuutettujen tutustumisesta valituksiin todettiin että, "muistutuskirjelmiä on siksi paljon ja ne ovat siksi laajoja, ettei niiden jäljentäminen ole kaavoitusviraston mielestä tarkoituksenmukaista, koska työ olisi suoritettava kohtuuttoman kalliina kopiointina. Nimenomaan tämä olisi tarpeetonta siksikin, että ehdotus on tarkoitus asettaa korjattuna uudestaan nähtäville, jolloin aikaisemmat muistutukset menettävät merkityksensä" (Tampereen kaupunki 1975, § 520).

Muistutukset

Pispalan uudelleenkaavoittamista tutkineen toimikunnan aikaisemmin mainittu kommentti, "Lienee selvää, ettei kilpailun perusteella saada sinänsä toteuttamiskelpoista asemakaavaa…" oli kilpailun voittajatyön ratkaisujen ja alueen asukkaiden toiveiden ristiriidan vuoksi tosiasia.

Arkkitehtitoimisto KTLV: n tekemän muistutustiivistelmän mukaan muistutukset luokiteltiin, tosin ei ole selvää sisältyvätkö tähän luokitteluun ne muistutukset jotka asemakaavalautakunnan mukaan voitiin "laskea muiksi kuin varsinaisiksi muistutuksiksi." Alla kunkin aihepiirin jäljessä on ilmoitettu sitä koskeneiden muistutusten lukumäärä:

  • Pispalan uudelleenkaavoittamista tutkineen toimikunnan aikaisemmin mainittu kommentti, "Lienee Pispalan olemus työväenkaupunginosana häviää, sen sosiaalinen rakenne muuttuu kaavan johdosta täysin (4 muistutusta).
  • Fyysistä omaleimaisuutta korostetaan sosiaalisen omaleimaisuuden kustannuksella (4).
  • Kaava keskittyy julkisten palvelujen osalta autojen pysäköintitaloihin ja rantalaitureihin; pitäisi keskittyä niihin palveluihin joita pispalalaiset tarvitsevat kuten pesula, sauna, vanhustentalo, nuorisotalo, kaupungin vuokratalot jne. (8)
  • Kaupungin vuokrataloissa asuvien prosenttinen osuus Pispalassa asuvista säilytettävä (7).
  • Lupa omalle tontille ajoon ja tonteille pysäköimiseen tulisi sallia aina kun se vain maastollisesti on mahdollista (38). Osaan muistutuksista liittyy tonttikohtaisia ratkaisuesimerkkejä.
  • Rantapuistovyöhyke Pyynikiltä Hyhkyyn olisi säilytettävä (myös Varalan kohdalla) (7).
  • Rantapuisto tulisi säilyttää luonnonvaraisena (5).
  • Tahmelan valtatie on kaavoitettu liian leveäksi; katualueelle jää paljon asuinrakennuksia; tien jatko Pyynikillä on epäselvä (10).
  • Pyynikin puistoon kaavoitettu alue( kortteli 1320) on poistettava (11).
  • Kävelykatuja on liikaa (4).
  • Kaavaa laadittaessa ei ole käytetty tarpeellista kulttuuri- ja perinnehistoriallista asiantuntemusta (3).
  • Pispalan suunnittelun metodologia ei ole uusimpien mukainen (esim. C. West Churcmanin dialektisen suunnittelunmetodologia) (1).

Asemakaavalautakunta totesi Arkkitehtitoimisto KTLV:n laatiman selvityksen ja vastine-ehdotuksen muistutuksiin olevan "asiallisesti ja mahdollisimman tyhjentävästi tehty. Sen perusteella saa tarpeellisen käsityksen muistutuksista sekä periaatteellisessa että yksityiskohtia koskettavassa mielessä. Kaavoitusvirasto yhtyy arkkitehtitoimiston esitykseen, jonka mukaan ehdotus olisi jaettava neljään osaan, jolloin samalla suoritettaisiin muistutusten edellyttämät tarkistukset ja korjaukset. Nämä osat tulisi jakaa kaupunginosittain eli Tahmelaan, Ala- ja Ylä-Pispalaan sekä Hyhkyyn” (Tampereen kaupunki 1975, § 520).

Jatkokäsittely

Asukkaiden reagointi Pispalaan täysin sopimattomaan kaavaehdotukseen sai aikaan melkoisen muutoksen sen jatkokehittelyssä.

Asemakaavalautakunta ja kaupunkisuunnittelujaosto käsittelivät kaavaa kolme kertaa syksyn 1975 aikana ja lokakuussa kaupunginhallitus päätti jatkaa kaavoitusta ottaen huomioon valituksissa esiin tulleet asiat. “Näitä ovat etenkin rakennusoikeuden osittainen alentaminen, katualueiden kaventaminen sekä julkisivumateriaaleja, kerroslukua sekä yhtenäistä korttelisuunnitelmaa koskevien asemakaavamääräystentarkistaminen” (Tampereen kaupunki 1975, § 520). Kaavoituksen tavoitteeksi määriteltiin “aikaansaada sellainen olevaa tilannetta kuvaava asemakaavallinen perusratkaisu, joka mahdollistaa olevan tilanteen säilymisen, peruskorjauksen ja olevaan tilanteeseen soveltuvan uudisrakentamisen” (KTLV 1976, 25).

Asuinkorttelialueiden ala nousi vuoden 1970 48,7 hehtaarista 54 hehtaariin, mutta rakennustehokkuuden alentaminen keskimääräisestä 0,7:stä 0,5:teen laski suunniteltua asuntokerrosalaa 351 880 neliömetristä 277 140 neliöön. Teoreettista asukasmäärää laskettiin 12 460 asukkaasta 9230 asukkaaseen. (KTLV 1976, 29) Asuntokerrosala on myöhempien kaavamuutosten ansiosta ylittynyt ollen vuonna 2002 306 955m2. Asukasluku puolestaan on huomattavasti tavoiteltua alhaisempi.

Kaavoittaja tyynnytteli tyytymättömiä asukkaita toteamalla 1.7.1976 päivätyssä kaavaselostuksessa, ettei asemakaavoituksen tarkoituksena "ole purkaa ja hävittää nykyistä Pispalaa, vaan antaa mahdollisuus rakentaa uutta korjauskelvottoman tai huonokuntoisen tilalle sekä luoda tietoisuus mahdollisuuksista joko rakentaa tai peruskorjata" (KTLV 1976, 26)

Suojelun näennäisyys ja sen vastuun jättäminen kiinteistöjen omistajille varmennettiin kaavaselostuksen viimeisellä sivulla toteamalla erityispiirteistä ja suojelukohteista; "Kohdassa 16 mainitut seikat on otettu huomioon suunnittelussa. Tosin niitä ei ole merkitty suojelu kohteina asemakaavaan" (KTLV 1976, 46).

Joustava kaava

Kaavan pilkkominen pieniin paloihin ei mahdollistanut aikaisemman kaltaista asukkaiden voimien kokoamista sitä vastustamaan.

Huhtikuussa 1977 kahden viikon ajan nähtävillä olleisiin osa-alueiden kaavaehdotuksiin tuli asukkailta 41 muistutusta. Näiden huomioimisesta kaupunki neuvotteli sisäasiainministeriön kanssa toukokuussa.

Kaavat hyväksyttiin kaupunginvaltuustossa Ala-Pispalan osa-aluekaavaa lukuun ottamatta 13.6.1977. Ala-Pispalan kaavaan tulleista muistutuksista KTLV totesi, "Suunnittelijan käsityksen mukaan asemakaavan muutosehdotusta vastaan tehdyt muistutukset eivät anna aihetta muutoksiin…" (Tampereen kaupunki 1978, 1009). Ala-Pispalan osakaavan valtuusto hyväksyi 25.5.1978.

Jälkeenpäin on vaikea arvioida oliko kaavoitusta laatineella arkkitehtitoimistolla tilaa ja mahdollisuuksia muuttaa kaavan sisältöä yhtään enempää. Suuria muutoksia siihen joka tapauksessa saatiin, vaikkakin Museoviraston lausunnosta ilmi tuleva suojelu-ulottuvuuden puute oli ilmeinen.

Joustava mutta ei - suojeleva

Kuluneet vuosikymmenet ovat osoittaneet kaavansuojelu-ulottuvuuden mitättömyyden.

Vuoden 1977 ja 1978 kaavoja voikin pitää taitavien kunnallispoliittisten pelaajien voittona asuinympäristöään suojelemaan pyrkineistä asukkaista.

Joustava (lue suojelumääräyksiä sisältämätön) kaava mahdollisti ja mahdollistaa edelleen asemakaavan alkutavoitteen kaltaisen "sosiaalisesti korkeatasoisen" asuinalueen rakentumisen poistavaan saneeraukseen pohjautuen. Maankäyttö- ja rakennuslain säädösten valossa kaava yksistään ei tosin enää mahdollista kulttuuriarvojen tuhoamista, vaan siihen tarvitaan nykyään myös taitoa myöntää rakennus- ja purkulupia lain ja valtakunnallisten alueidenkäyttötavoitteiden vastaisesti.

Syrjäsen mukaan "oikeustapausten ja vanhan rakennuskannan säilymistä koskevien vertailutietojen perusteella on todettava, että erittäin joustaviin normeihin tukeutuminen on rakennusten säilyttämisen kannalta johtanut huonoon tulokseen. Kummankaan käytössä olleen lain (RakL ja RakSL) avulla ei ole pystytty vanhaa, arvokasta rakennuskantaa säilyttämään, vaan joustavuus on toiminut toisin päin: se on lähinnä rationalistisen suunnitteluideologian muodostaman oikeuskulttuurin tukemana mahdollistanut suurimittaisen rakennetun ympäristönhävittämisen" (Syrjänen 1999, 222).

Erityisen ongelmalliseksi on muodostunut historiallisen jatkuvuuden periaatteen palauttaminen kaavaratkaisuihin silloin, kun alueelle on aiemmin vahvistettu rakennusten purkamisen salliva, poistava kaava. "Valitustapauksissa harkinta on usein kallistunut siihen, että kohtuuttomuutta mitataan poistavan kaavan rakennusoikeudella" (Syrjänen 1999, 222).

Myöskään uusi maankäyttö- ja rakennuslaki ei näytä tuoneen tilanteeseen muutosta, ainakaan Pispalassa.

Uittoyhdistyksen talona tunnetun kiinteistön rakennussuojelu esitystä käsiteltäessä apulaisasemakaava-arkkitehti Kristiina Jääskeläinen totesi kaavoitusyksikön lausunnossa, että vaikkei kaava "täytä nykyaikaisen suojelukaavan vaatimuksia, asemakaavaa ei ole ryhdytty tarkistamaan mm. henkilöresurssien puutteenvuoksi" (Tampereen kaupunki 2000, § 72).

Kaavan voimassa olon aikana siihen on tehty yli 130 yksittäistä muutosta, joilla on muun muassa lisätty kiinteistöjen rakennusoikeutta, liitetty niihin yleisiä alueita tai muutettu yleisen rakentamisen tontteja asuinrakennustonteiksi.

Resurssipula on siis ollut hyvin valikoivaa laatua.

Lähteet:
  • Suomen Kunnallislehti 1969/3, 8-9.
  • KTLV (arkkitehtitoimisto Kauria Turtola Lummaa Vormala) 1970, Pispala asemakaavaluonnos suunnitteluraportti, Tampere 8.12.1970.
  • KTLV 1976, Pispala asemakaavan yleisselostus, Tampere 1.7.1976.
  • Tampereen kaupunki 1975, Asemakaavalautakunta 30.9.1975, 520§
  • Tampereen kaupunki 1978, kaupunginvaltuuston päätöslistat, 1009.
  • Tampereen kaupunki, YLA (ympäristölautakunta), Dno KKA:4690/601/2000, § 72, 2.
  • Syrjänen Olavi, Harkintavalta kaavoituksessa ja rakentamisessa, Tampere 1999.

Sivun alkuun